
The place where you spend 1/3 of your life must be pleasant.
Brand identity, ergnomics, and user research landed in this beautiful office.
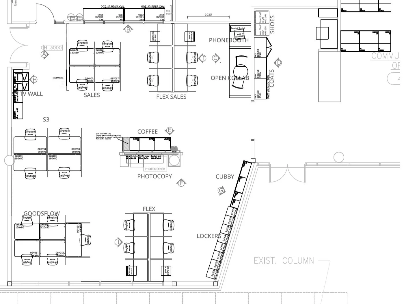
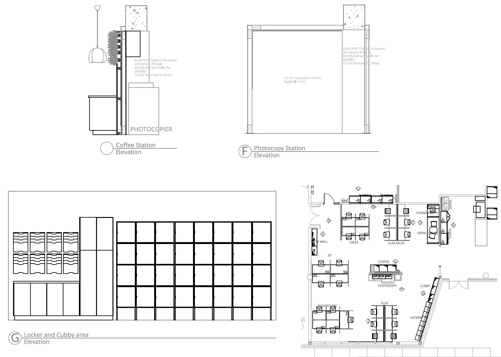
Planning, organizing, brainstorming, from the concept to the installation and supervision of millwork and fixtures. Every detail counts. Where 25 mangers and 52 sales co-workers are going to spend time doing what they know best.







From the planning to reality…









As the project leader of the design concept and installation of the offices, I generated the drawing packages, supervised the installation and manufacture of custom made furniture and hardware . I enjoyed leding teams of vendors, building strong professional relationships.